Local de 467 m² en edificio histórico del Centro de Madrid – 2091
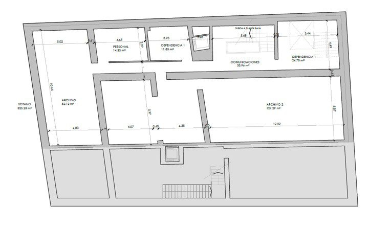
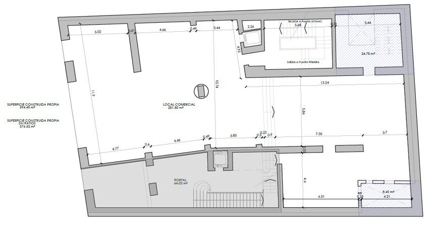
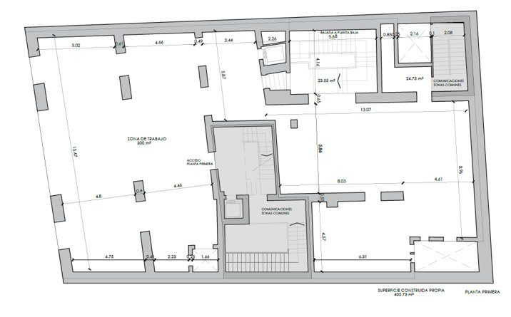
Se ofrece en venta un local ubicado en un edificio histórico en pleno Centro de Madrid, dentro de la parcela catastral 0745709VK4704F. La finca cuenta con una superficie de 467 m², mientras que la superficie construida total asciende a 3.606 m², de los cuales 3.139 m² se encuentran sobre rasante y 467 m² bajo rasante. La superficie cubierta es de 451 m², lo que aporta un volumen significativo y versátil para múltiples usos terciarios.
El inmueble se sitúa en una de las zonas más exclusivas y demandadas de Madrid, a escasos metros de Plaza de Canalejas, Puerta del Sol, Plaza de Cibeles, el Banco de España y el Ayuntamiento. Se trata de un enclave urbano de máximo valor institucional, turístico y comercial, con un flujo constante de residentes, visitantes y profesionales.
El carácter histórico y representativo del edificio, unido a la amplitud de superficies y a su ubicación estratégica, convierten este activo en una oportunidad excepcional tanto para operadores que busquen implantarse en un entorno prime como para inversores interesados en un inmueble singular con un fuerte potencial de reposicionamiento y valorización.



