C/ Palau de la Música, 4-6, Ciutat Vella, 08003 Barcelona, España
C/ Palau de la Música, 4-6, Ciutat Vella, 08003 Barcelona, EspañaLo esencial
- Categoría: Venta
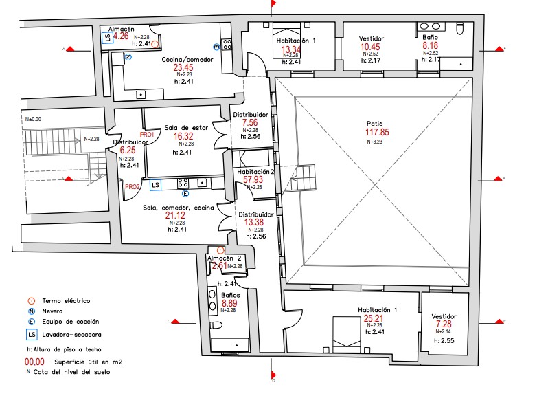
- Superficie Construida: 230 m²
- Tipo: Piso
- Estado : Lienzo en Blanco
- Dormitorios: 2
- Baños : 2
- Nivel del suelo: 2
Descripción
-
Descripción:
Dos exclusivos lofts en pleno centro de Barcelona, con vistas directas al emblemático Palau de la Música Catalana y a la reconocida escultura de La Carmela. Esta singular propiedad forma parte de una mansión histórica de 1788, restaurada con meticuloso detalle en 1898, conservando elementos originales de gran valor: muros de piedra, columnas de hierro forjado y piezas históricas que aportan carácter y autenticidad.
Ambos lofts se encuentran bajo un único título registral, lo que ofrece una configuración versátil y atractiva tanto para uso propio como para inversión. La propiedad cuenta con un contrato de arrendamiento vigente por tres años, con un año obligatorio ya firmado con el inquilino, lo que garantiza estabilidad y rendimiento desde el primer día.
Ubicada en el corazón de Barcelona, en una zona vibrante, cultural y perfectamente conectada, esta propiedad disfruta además de un Impuesto de Transmisiones Patrimoniales reducido del 1,5%, un beneficio excepcional que incrementa aún más su atractivo como activo patrimonial.
Una oportunidad única para adquirir una pieza histórica con encanto, rentabilidad y una ubicación absolutamente privilegiada.
Mostrar toda la descripción
Ubicación
- Barrios : Cuirar Vella, Sant pere
