C. de Martí, 4, Salamanca, 28006 Madrid, España
C. de Martí, 4, Salamanca, 28006 Madrid, EspañaLo esencial
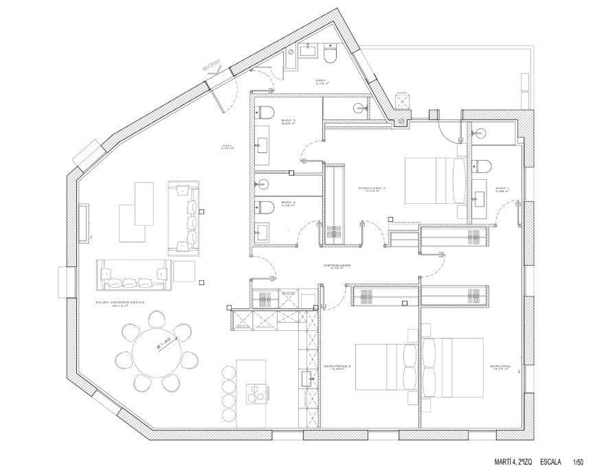
- Superficie Construida: 192 m²
- Dormitorios: 3
- Baños : 4
- Nivel del suelo: 2
Descripción
-
Descripción:
exclusiva vivienda ubicada en una finca clásica y señorial en pleno barrio de Salamanca, una de las zonas más prestigiosas y deseadas de Madrid.
El inmueble combina el encanto de la arquitectura tradicional con un diseño interior contemporáneo y sofisticado. Desde la entrada se perciben los materiales nobles, las texturas y los tonos cálidos que transmiten una auténtica sensación de hogar sin renunciar a la elegancia. Su distribución destaca por ser única en la zona, ya que la vivienda goza de las cuatro orientaciones, lo que garantiza luz natural y ventilación cruzada a lo largo de todo el día.
La zona social es el gran protagonista: un amplio salón–comedor con cuatro huecos a la calle que inundan el espacio de luminosidad. Su carácter diáfano, conectado con la cocina a través de una cómoda península, crea un ambiente ideal para compartir y disfrutar. Este espacio, concebido como el corazón de la vivienda, se completa con un aseo de cortesía que aporta comodidad y permite separar con claridad la vida social de la zona de descanso.
La cocina, de líneas modernas y funcionales, ofrece una generosa superficie de trabajo, electrodomésticos integrados y abundante capacidad de almacenaje, uniendo estética y practicidad en perfecto equilibrio.
La zona de descanso dispone de tres dormitorios amplios y luminosos. El principal es una auténtica master suite, con vestidor, baño en suite y cuatro ventanas que refuerzan la luminosidad y la ventilación natural. El segundo dormitorio cuenta con un baño en suite de gran tamaño, realizado con materiales de primera calidad, y con acceso a una terraza orientada al sureste que asegura un soleamiento óptimo. El tercer dormitorio, igualmente espacioso y con orientación oeste, ofrece flexibilidad para adaptarse a distintas necesidades. Un tercer baño completo da servicio a esta estancia.
La vivienda se completa con una práctica zona de lavandería independiente y espacios de almacenaje diseñados para facilitar la organización diaria.
Un hogar excepcional que aúna ubicación, diseño y funcionalidad en uno de los barrios más icónicos de Madrid.
Mostrar toda la descripción
Ubicación
- Barrios : Castellana, Recoletos, Salamanca
Detalles del edificio
- Estacionamiento: Garaje - Comunitario
Servicios y características
- Comodidades:
- Características:
Energy diagnostics
-
Energy Efficiency Class: ABCDEFG
-
Greenhouse gas emission class (GHG): ABCDEFG
