Calle de García de Paredes, 78, Chamberí, 28010 Madrid, España
Calle de García de Paredes, 78, Chamberí, 28010 Madrid, EspañaLo esencial
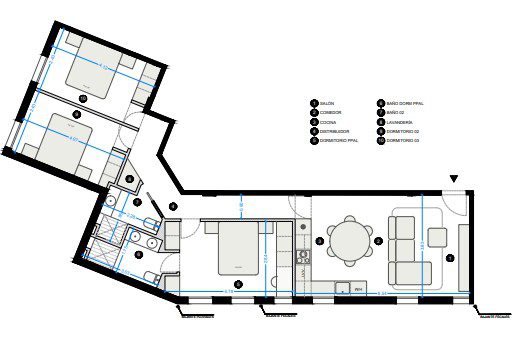
- Superficie Construida: 93
- Categoría: En venta, Inversion
- Tipo: Interior, Piso
- Estado : Lienzo en blanco
- Dormitorios: 3
- Baños : 2
- Nivel del suelo: 6
Descripción
-
Descripción:
El piso, situado en una sexta planta interior, destaca por su abundante luz natural gracias a su orientación sur y a un amplio patio interior que permite la entrada directa del sol. Con menos de 100 metros cuadrados, ofrece una distribución versátil con posibilidad de tres habitaciones dobles, techos altos y un diseño moderna-clásico que invita a personalizar cada espacio. La alta demanda de alquiler, tanto residencial como turístico, junto a la constante revalorización de la zona, convierten esta propiedad en una opción segura para quienes
Mostrar toda la descripciónUbicada en una de las zonas más exclusivas de Chamberí, esta propiedad representa una oportunidad única de inversión en el corazón de Madrid. La calle, tranquila y segura, se encuentra rodeada de un entorno residencial consolidado, con acceso inmediato a comercios, restaurantes, colegios y servicios premium. Su excelente comunicación, con varias líneas de metro y autobuses, y la proximidad a las principales arterias de la ciudad, garantizan una conectividad inmejorable.
Servicios y características
- Comodidades :
- Características:
