C. de Orense, 25, Tetuán, 28020 Madrid, España
C. de Orense, 25, Tetuán, 28020 Madrid, EspañaLo esencial
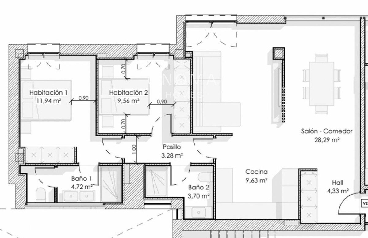
- Superficie Construida: 100 m²
- Dormitorios: 2
- Baños : 2
- Nivel del suelo: 7
- Año de construcción : 1965
- Año remodelado: 2026
Descripción
-
Descripción:
Moderno piso en calle Orense – Exterior, muy luminoso y totalmente reformado
¡Oportunidad única en una de las zonas más demandadas de Madrid!
Se ofrece espectacular vivienda exterior ubicada en calle Orense, con 82 m² útiles más trastero, en pleno proceso de reforma integral (finalización estimada en un par de meses). Ideal tanto para vivir como para invertir.
La vivienda cuenta con:
Dos habitaciones dobles, una de ellas con baño en suite.
Dos baños completos: el principal dentro del dormitorio y el segundo, perfecto como baño de cortesía o para la segunda habitación.
Salón-comedor muy luminoso gracias a su orientación exterior.
Cocina totalmente equipada y abierta al salón.
Reforma integral de diseño, con mobiliario nuevo incluido.
Nota importante: Las imágenes que puedan verse (renders) no representan el resultado final. Se pueden realizar visitas en cualquier momento.
Mostrar toda la descripción
Ubicación
- Barrios : Cuatro Caminos, Tetuan
Servicios y características
- Comodidades:
- Características:
