Sant Pere, Santa Caterina i la Ribera, Ciutat Vella, Barcelona, España
Sant Pere, Santa Caterina i la Ribera, Ciutat Vella, Barcelona, EspañaLo esencial
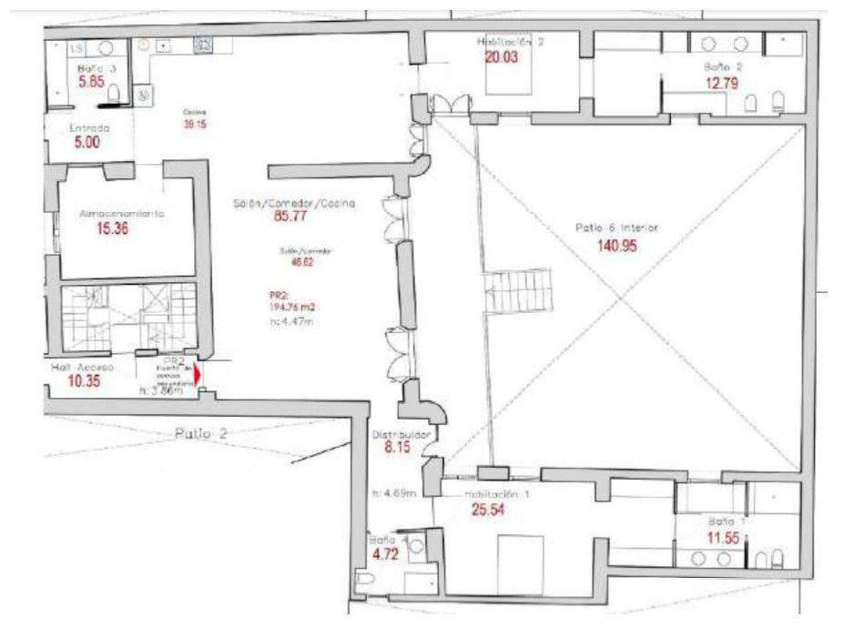
- Superficie Construida: 244
- Categoría: En venta
- Estado : Amueblado, Buen Estado
- Dormitorios: 3
- Baños : 3
- Nivel del suelo: 2
Descripción
-
Descripción:
Extraordinaria oportunidad en pleno corazón de Barcelona. Esta magnífica propiedad forma parte de una histórica mansión que data de 1788 y fue restaurada minuciosamente en 1898, conservando cautivadores muros de piedra, elegantes columnas de hierro forjado y valiosos elementos históricos.
Lo más destacado de esta propiedad es que cuenta con 3 amplias habitaciones, además de 3 baños y una espléndida terraza del 140m2 de terraza, perfecta para disfrutar del máximo confort y estilo de vida en Barcelona.
Mostrar toda la descripción
Ubicación
Servicios y características
- Comodidades :
