C. Alcalá, 153, Salamanca, 28009 Madrid, España
C. Alcalá, 153, Salamanca, 28009 Madrid, EspañaLo esencial
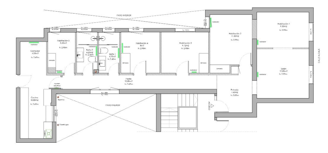
- Superficie Construida: 138 m²
- Dormitorios: 3
- Baños : 2
- Nivel del suelo: 3
- Año de construcción : 1929
Descripción
-
Descripción:
La vivienda, situada en una preciosa finca clásica, destaca por sus techos altos de 3 metros, fachada exterior orientada al sureste y vistas a la emblemática calle Alcalá, lo que aporta gran luminosidad a todas las estancias. Su distribución, con apertura a la fachada principal y a dos patios interiores, maximiza la entrada de luz natural y la sensación de amplitud y confort. El portal amplio y accesible, junto con el entorno residencial consolidado, ofrece seguridad, tranquilidad y calidad de vida. Ideal para familias o inversores exigentes, esta propiedad combina exclusividad, potencial de revalorización y una ubicación privilegiada, rodeada de prestigiosos colegios, centros médicos y zonas verdes como el Parque del Retiro. Una oportunidad irrepetible para quienes buscan vivir o invertir en el corazón de Madrid, con todos los servicios y conexiones a su alcance.
Mostrar toda la descripciónUbicada en el prestigioso distrito de Salamanca, esta propiedad prime representa una oportunidad única de inversión en una de las zonas con mayor plusvalía y crecimiento de Madrid. Su localización estratégica, junto a El Corte Inglés y rodeada de una amplia oferta comercial, gastronómica y de servicios, garantiza alta demanda tanto residencial como turística, asegurando rentabilidad y revalorización a mediano y largo plazo. La excelente conectividad, con paradas de metro y autobús a escasos metros y acceso inmediato a las principales vías, facilita la movilidad y aumenta el atractivo para futuros inquilinos o compradores.
Ubicación
Servicios y características
- Características:
