C. de Alberto Aguilera, Madrid, España
C. de Alberto Aguilera, Madrid, EspañaLo esencial
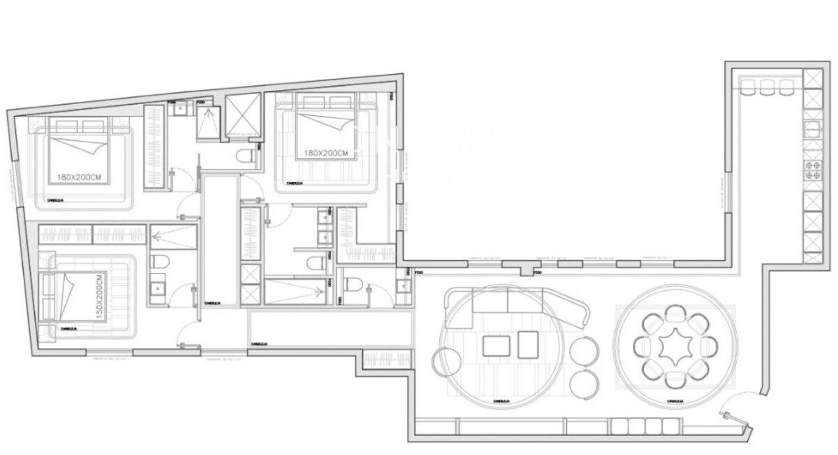
- Superficie Construida: 176 m²
- Dormitorios: 3
- Baños : 4
- Nivel del suelo: 2
- Año de construcción : 1948
- Año remodelado: 2025
Descripción
-
Descripción:
Exclusiva vivienda en proceso de reforma junto a la Glorieta de Bilbao – Centro de Madrid
En una ubicación inmejorable, a escasos metros de la calle Alberto Aguilera y la Glorieta de Bilbao, se encuentra esta luminosa vivienda totalmente exterior que combina elegancia, confort y las mejores calidades del mercado.
El piso, actualmente en proceso de reforma integral con calidades prime, contará con tres amplias habitaciones, todas ellas con baño en suite, además de un aseo de cortesía.
La zona de salón-comedor destaca por su amplitud y su excelente luz natural gracias a sus grandes ventanales, creando un espacio perfecto para disfrutar y recibir invitados. La cocina, situada de manera independiente pero próxima al comedor, se entregará completamente equipada con electrodomésticos de alta gama.
La vivienda se entrega totalmente amueblada y lista para entrar a vivir, ofreciendo un diseño moderno, funcional y con acabados de primera calidad.
El edificio cuenta con servicio de portería, lo que añade un plus de comodidad y seguridad en pleno corazón de Madrid.
Una oportunidad única para estrenar un piso de luj
Mostrar toda la descripción
Servicios y características
- Comodidades:
- Características:
