Calle de Castelló, Madrid, España
Calle de Castelló, Madrid, EspañaLo esencial
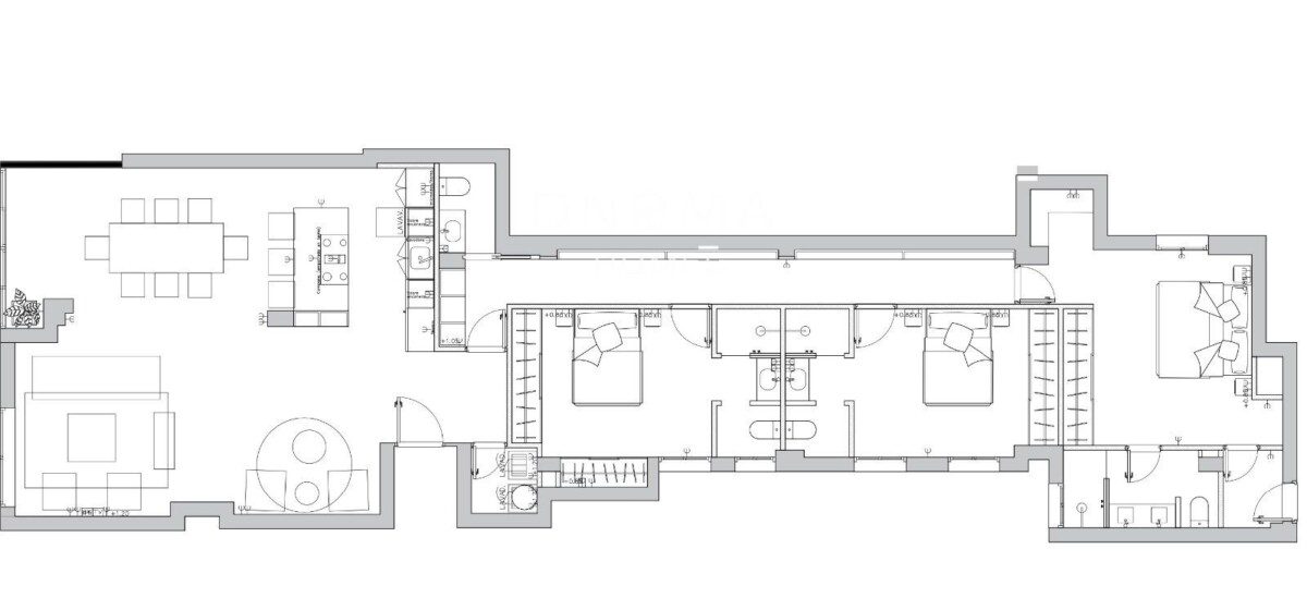
- Superficie Construida: 278 m²
- Dormitorios: 3
- Baños : 4
- Nivel del suelo: 4
- Año de construcción : 1966
- Año remodelado: 2025
Descripción
-
Descripción:
vivienda de 278 m² situada en una de las mejores y más tranquilas calles del barrio de Salamanca, calle Castelló.
La propiedad, ubicada en una cuarta planta, destaca por su excelente luminosidad y una distribución pensada para el máximo confort. Cuenta con 3 amplios dormitorios, todos ellos con baño en suite, además de un aseo de cortesía. El salón, de generosas dimensiones y con diferentes ambientes, ofrece un espacio elegante y acogedor, ideal tanto para el día a día como para recibir invitados.
La vivienda se entrega totalmente reformada y equipada, llave en mano, con una reforma de altísimo nivel, en la que se han empleado materiales nobles como madera natural y piedra natural, cuidando cada detalle y apostando por un diseño sofisticado y atemporal.
La cocina se presenta completamente equipada con electrodomésticos de alta gama y una distribución funcional. Todas las estancias destacan por su amplitud, calidad de acabados y gran entrada de luz natural.
Mostrar toda la descripción
Ubicación
Detalles del edificio
- Estacionamiento: Garaje - Comunitario
Servicios y características
- Comodidades:
- Características:
