Calle de María de Molina, Madrid, España
Calle de María de Molina, Madrid, EspañaLo esencial
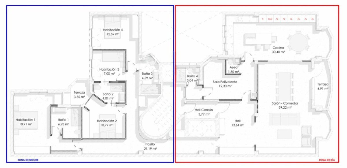
- Superficie Construida: 304 m²
- Dormitorios: 4
- Baños : 4
- Nivel del suelo: 4
- Año de construcción : 1945
- Año remodelado: 2026
Descripción
-
Descripción:
Amplia y luminosa vivienda ubicada en una finca de 1945 de gran calidad, con portero, plaza de parking y trastero, en el barrio de Salamanca. La propiedad también cuenta con terraza, ideal para disfrutar del aire libre y de la zona.
Su ubicación estratégica la convierte en una opción perfecta para una familia o como inversión para alquiler, al encontrarse junto a la prestigiosa Universidad IE.
El piso ha sido totalmente reformado, equipado y amueblado, con acabados de lujo, listo para entrar a vivir. La distribución aprovecha al máximo cada espacio, ofreciendo confort y funcionalidad.
Dispone de dos amplias habitaciones que podrían considerarse suites master, cada una con baño completo, y una de ellas con terraza al patio interior. Además, cuenta con dos habitaciones adicionales con baño, una sala polivalente que puede utilizarse como otra habitación o salón de TV, que incluye baño completo, así como un aseo de cortesía.
El salón-comedor es amplio, luminoso y cuenta con acceso a la terraza, creando un espacio ideal para la vida diaria y para recibir invitados. La cocina independiente es espaciosa y dispone de comedor propio, perfecta para uso familiar o reuniones.
Una propiedad excepcional, con una distribución inteligente, espacios generosos y acabados de alto nivel, en una de las zonas más consolidadas y demandadas de Madrid.
Mostrar toda la descripción
Detalles del edificio
- Garage spaces: 1
- Estacionamiento: Garaje - Comunitario
Servicios y características
- Comodidades:
- Características:
