Calle de Castelló, 98, Salamanca, 28006 Madrid, España
Calle de Castelló, 98, Salamanca, 28006 Madrid, EspañaLo esencial
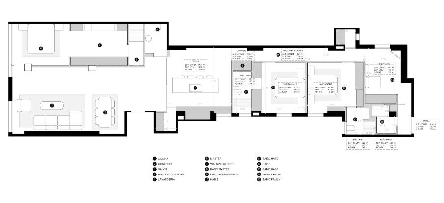
- Superficie Construida: 276 m²
- Dormitorios: 3
- Baños : 5
- Nivel del suelo: 6
Descripción
-
Descripción:
La propiedad se distingue por sus vistas despejadas hacia la iglesia de Diego de León y cuenta con comodidades excepcionales, como un garaje en la misma finca y múltiples ascensores, incluyendo un montacargas. Con solo dos vecinos por planta, ofrece privacidad y exclusividad, ideales para familias y profesionales que buscan calidad de vida en el corazón de Madrid.
Mostrar toda la descripciónSobre la Ubicación
Esta propiedad prime en el prestigioso barrio de Salamanca ofrece una oportunidad única de inversión en una de las zonas más exclusivas de Madrid. Ubicada en la calle de Castelló en el barrio de Castellana, combina una ubicación privilegiada con una excelente conectividad, rodeada de servicios de lujo y una vibrante oferta cultural y de ocio. La constante revalorización de las propiedades en la zona asegura una inversión rentable a largo plazo.
Ubicación
- Barrios : Castellana, Salamanca
Detalles del edificio
- Estacionamiento: Garaje - Comunitario
Servicios y características
- Comodidades:
- Características:
