C/ del Alcalde Sainz de Baranda, 17, Retiro, 28009 Madrid, España
C/ del Alcalde Sainz de Baranda, 17, Retiro, 28009 Madrid, EspañaLo esencial
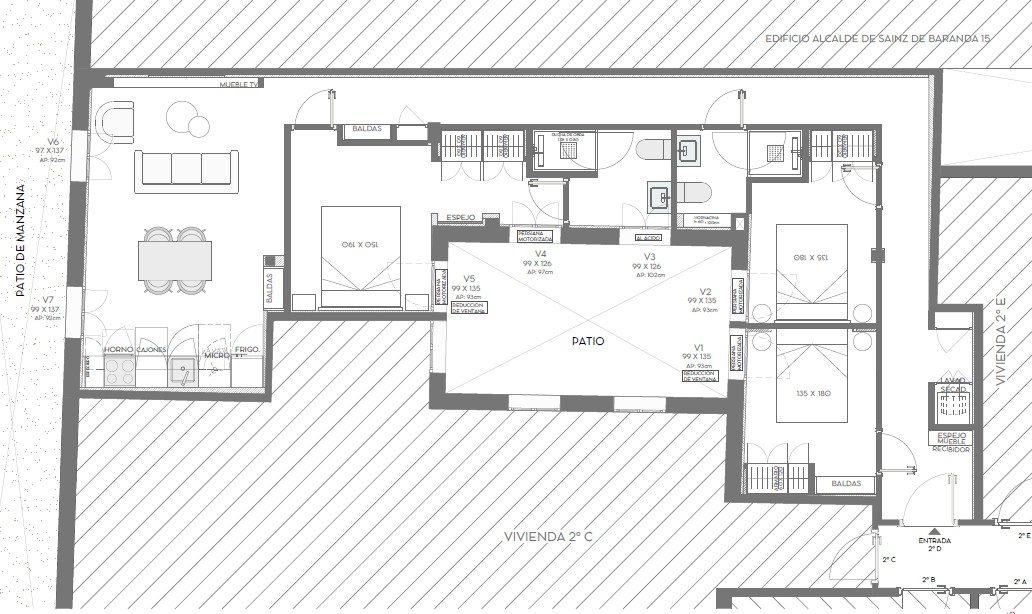
- Superficie Construida: 101 m²
- Dormitorios: 3
- Baños : 2
- Nivel del suelo: 2
Descripción
-
Descripción:
Vivienda situada en la calle Alcalde Sainz de Baranda, en el barrio de Ibiza, dentro del distrito Retiro de Madrid. Ubicada en una segunda planta interior de un edificio de 1944 con ascensor y portería, la propiedad ofrece un entorno tranquilo en una de las zonas con mayor calidad de vida de la ciudad, a escasos minutos del Parque del Retiro.
Mostrar toda la descripción
Con 101 m2 catastrales, la vivienda ha sido reformada con un planteamiento funcional y contemporáneo. La zona de día se organiza de manera fluida, optimizando cada espacio y generando una distribución cómoda para el día a día. La cocina se entrega completamente equipada y la vivienda amueblada, lista para entrar a vivir.
Dispone de tres dormitorios y dos baños completos, configurando una distribución equilibrada y versátil. Cuenta además con vestidor, aportando un plus de organización en la zona más privada.
La vivienda dispone de calefacción comunitaria y aire acondicionado por conductos, garantizando confort durante todo el año. El edificio cuenta con accesibilidad.
Una propiedad reformada en pleno barrio de Ibiza, ideal para quienes buscan tranquilidad y ubicación estratégica junto al Parque del Retiro.
Servicios y características
- Comodidades:
- Características:
