Lo esencial
Descripción
-
Descripción:
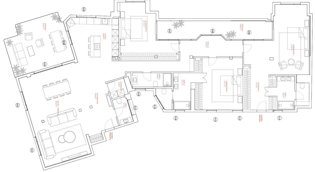
Vivienda Reformada de Lujo en Lista – Salamanca
En el prestigioso barrio de Lista, en pleno corazón del distrito Salamanca, se encuentra esta exclusiva vivienda totalmente reformada de aproximadamente 319 m², ubicada en una séptima planta que garantiza luminosidad y vistas despejadas gracias a su orientación suroeste.
La propiedad ofrece una distribución elegante y funcional, con tres amplias habitaciones, tres baños completos y un aseo adicional, además de una práctica zona de lavandería. Destacan sus dos terrazas privadas, ideales para disfrutar del aire libre en un entorno urbano privilegiado.
El inmueble cuenta con ascensor, plaza de garaje, trastero y servicio de conserjería, lo que aporta comodidad y seguridad. Una oportunidad única para vivir con estilo y confort en una de las zonas más cotizadas de Madrid.
Mostrar toda la descripción
Ubicación
Detalles del edificio
- Estacionamiento: Garaje - Comunitario
Servicios y características
- Comodidades :
- Características:
