Lo esencial
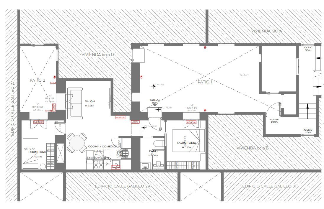
- Superficie Construida: 60 m²
- Dormitorios: 2
- Baños : 1
- Nivel del suelo: 0
- Año de construcción : 1920
- Año remodelado: 2026
Descripción
-
Descripción:
Vivienda situada en la calle Meléndez Valdés, en el barrio de Arapiles, dentro del distrito Chamberí de Madrid. Ubicada en planta baja de un edificio clásico de 1920 con ascensor, la propiedad ofrece un entorno tranquilo en una de las zonas más demandadas y consolidadas de Chamberí.
Mostrar toda la descripción
Con 60 m2 catastrales, la vivienda ha sido reformada para optimizar cada espacio con un planteamiento funcional y actual. La zona de día se organiza de forma eficiente, integrando la cocina completamente equipada dentro del conjunto. Se entrega totalmente amueblada y lista para entrar a vivir.
Dispone de dos dormitorios y un baño completo, configurando una opción versátil tanto como primera vivienda como inversión en una ubicación estratégica, próxima a universidades y a todos los servicios del barrio.
Cuenta con calefacción individual de gas y aire acondicionado por split, garantizando confort durante todo el año.
Una propiedad reformada en pleno Chamberí, ideal para quienes buscan funcionalidad y ubicación en uno de los distritos con mayor identidad residencial de Madrid.
Servicios y características
- Características:
