Calle de Núñez de Balboa, 125, Salamanca, 28006 Madrid, España
Calle de Núñez de Balboa, 125, Salamanca, 28006 Madrid, EspañaLo esencial
Descripción
-
Descripción:
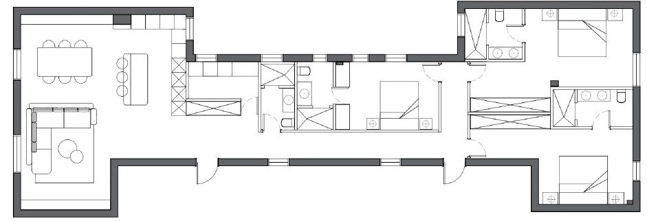
Vivienda muy señorial situada en la séptima y última planta de un edificio representativo en Núñez de Balboa 125, dentro de la prestigiosa zona de Castellana. Con 198 m², este inmueble destaca por su luminosidad excepcional y por una distribución amplia y elegante que incluye tres habitaciones en suite, baño de cortesía, lavandería y estancias generosas pensadas para un estilo de vida cómodo y sofisticado. El edificio cuenta con portero físico, lo que aporta seguridad y servicio añadido. Los gastos asociados son muy competitivos para la zona: IBI 1.461,76 €, comunidad 357,39 € y tasa de basuras 355,89 €. Actualmente se encuentra en proyecto en ejecución, con fecha estimada de entrega en mayo de 2026, lo que permite al comprador acceder a una vivienda de alto nivel en una de las direcciones más demandadas del Barrio de Salamanca, con un potencial de revalorización muy elevado.
Mostrar toda la descripción
Ubicación
- Barrios : Castellana, Salamanca
Servicios y características
- Comodidades:
- Características:
